Bory Immobilier

Montet (Broye)

 Service des ventes
Prix de vente
CHF 360'000
Localité
Montet (Broye) (1483)
Surface
80 m2
Nombre de pièce(s)
2.5
Numéro de dossier
78855

Renseignements complets sur:

my.bory.ch
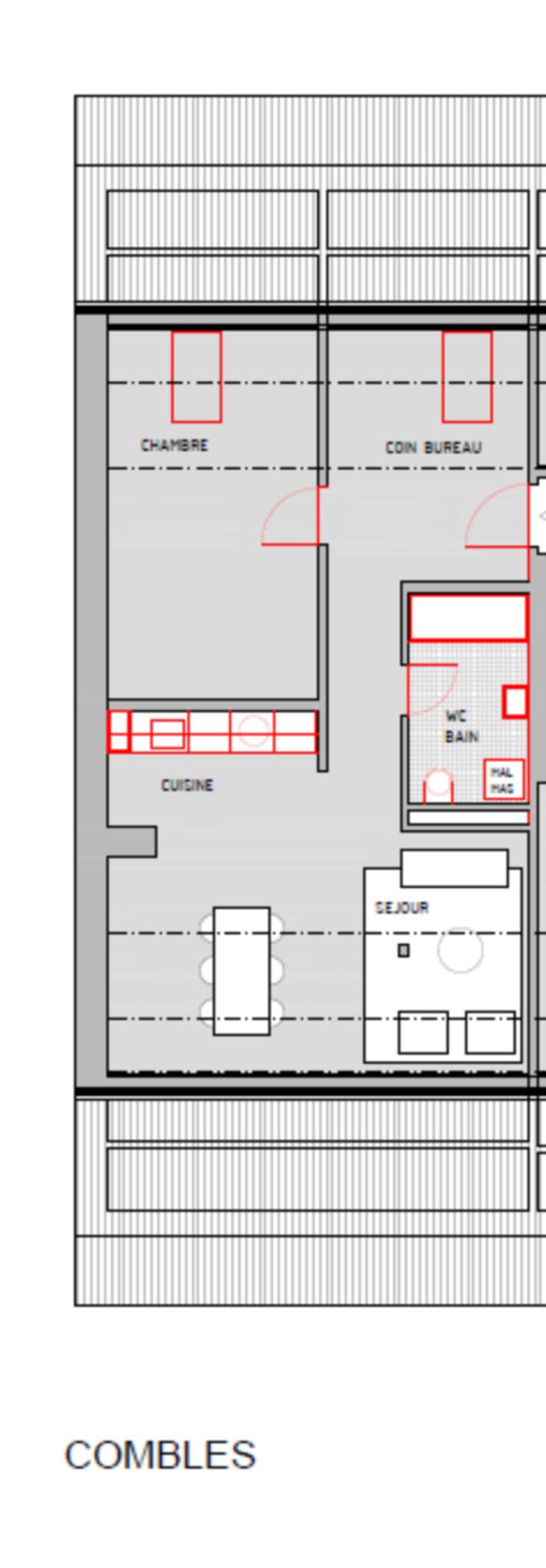
Appartement traversant de 2,5 pièces, bénéficiant d’une belle orientation et d’une belle luminosité. Rénové avec goût et avec des matériaux contemporain, parquet au sol, entrée avec espace bureau, 1chambres à coucher, 1 salle de bains/WC/colonne de lavage, cuisine ouverte entièrement équipée avec de l’électroménager Siemens, donnant sur le séjour/salle à manger. 1 cave, ainsi qu’une place de parc extérieure à 10'000.- ou un garage box à 20'000.- (en sus du prix de vente). A visiter absolument ! Technique : - Immeuble sans ascenseur - Fenêtres triple vitrage PVC - Électroménager Siemens - Chauffage au mazout distribution par radiateurs

Ces informations sont non contractuelles.

Cliquez sur une photo pour zoomer.

Ces annonces pourraient aussi vous intéresser