Bory Immobilier

Appartement 4.5 pièces à Roche VD - Lot 9

 Service des ventes
Prix de vente
CHF 850'000
Localité
Roche VD (1852)
Surface
108.4 m2
Nombre de pièce(s)
4.5
Numéro de dossier
79522

Renseignements complets sur:

my.bory.ch
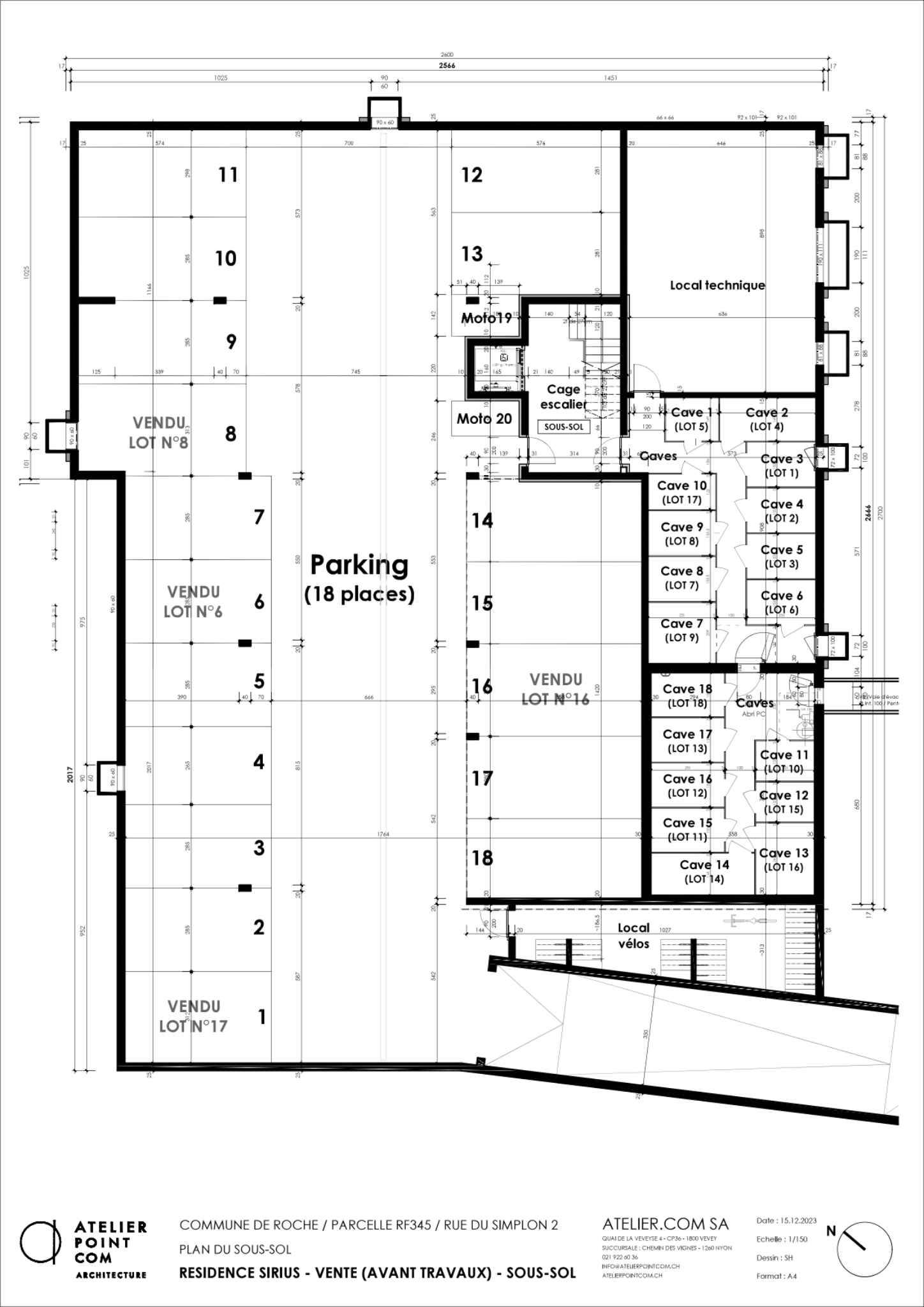
Dans une PPE de 18 appartements, cet appartement de 4.5 pièces dispose d'une surface habitable de 108.4 m2 et d'un balcon de 17 m2 Il est composé comme suit : - Hall d'entrée et couloir - 3 chambres à coucher - Salle de bains - Salle de douche - Cuisine ouverte - Séjour/salle à manger accès au balcon - Cave Une place de parc intérieure est disponible en sus du prix à 35'000.- Début des travaux février 2025. Livraison automne 2026. Lien vers le site web de la promotion : https://residence-sirius.ch/index.php

Ces informations sont non contractuelles.

Cliquez sur une photo pour zoomer.

Ces annonces pourraient aussi vous intéresser

Item 1 of 0