Bory Immobilier

Villa N°4

 Service des ventes
Prix de vente
CHF 665'000
Localité
Riddes (1908)
Surface
97.7 m2
Nombre de pièce(s)
3.5
Numéro de dossier
61623

Renseignements complets sur:

my.bory.ch
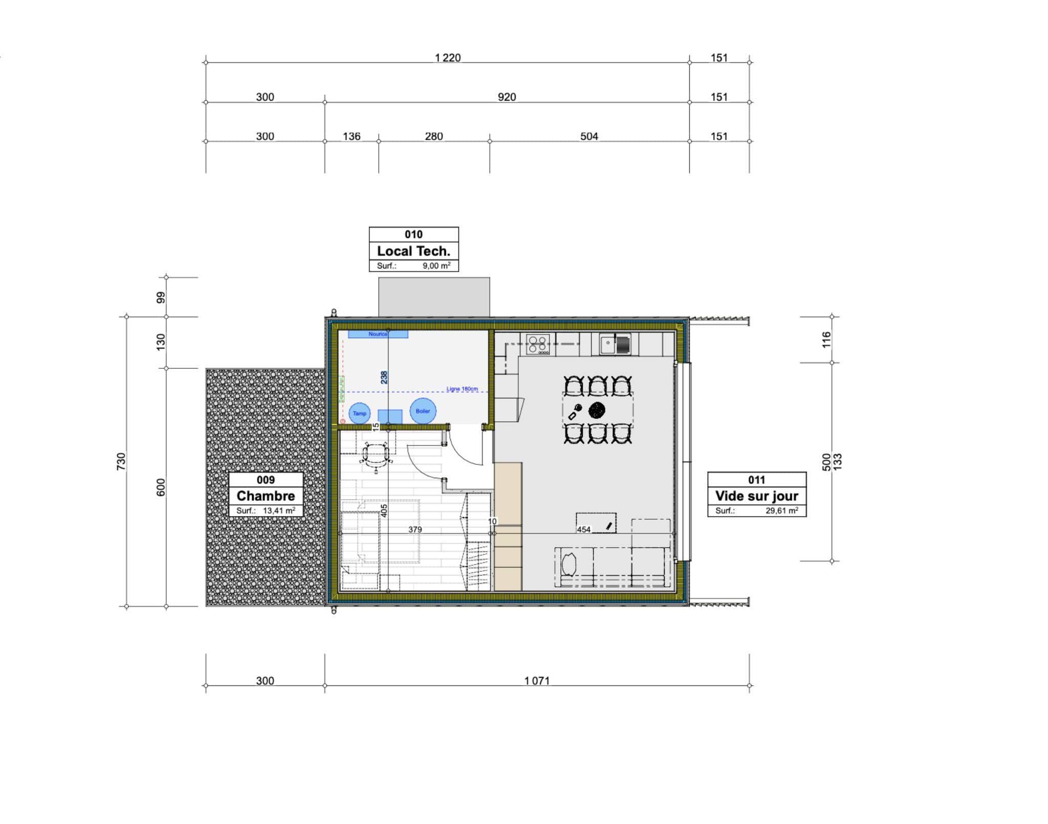
Descriptif maison de 3.5 pièces: L'accès principal se fait directement par une porte d'entrée ouvrant sur un hall d'entrée. Celui-ci inclut : - Un vestiaire pour le rangement des vêtements et accessoires. - Un WC-douche, équipé d'une colonne de lavage pour machines (lave-linge et sèche-linge). En traversant le hall, on accède à une chambre offrant un espace confortable et lumineux. La partie principale du rez-de-chaussée s'organise autour d'un espace ouvert, comprenant : - Une cuisine moderne ouverte. - La salle à manger, idéale pour les repas et les moments conviviaux. - Un séjour spacieux, conçu pour accueillir les espaces de vie et de détente. Un escalier central astucieusement intégré, offrant des espaces de rangement supplémentaires, mène à : - Une mezzanine sous charpente en bois, ajoutant un volume supplémentaire à l’étage. - Un local technique, situé également à l'étage, pour les équipements domestiques et techniques. Aménagements Extérieurs: Les extérieurs sont pensés pour allier praticité, esthétique et intégration harmonieuse au terrain, la terrasse à l’Est, située à l'arrière ou sur le côté de la maison (selon orientation), elle offre un espace idéal pour profiter des repas en plein air ou des moments de détente. Une pelouse soigneusement aménagée couvre les espaces verts autour de la villa, apportant une touche de nature et de fraîcheur. Entre la maison et la pelouse, une bande de gravillons (chaille) assure une transition esthétique et fonctionnelle, facilitant l'entretien et le drainage. Stationnements : - Revêtement en enrobé ou chemin pavé drainant. - Espaces prévus pour accueillir les véhicules. Ces aménagements garantissent un extérieur convivial et bien organisé, tout en répondant aux besoins pratiques des résidents.

Ces informations sont non contractuelles.

Cliquez sur une photo pour zoomer.

Ces annonces pourraient aussi vous intéresser

Item 1 of 0